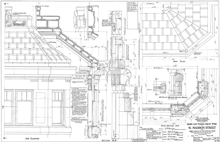
W. Madison Street
Lyric Opera Bridge
Detail drawing of the Bridge Tender House (1920)
(Courtesy of the Chicago Department of Transportation - Division of Engineering)

Find Us On:
Links:

Unless otherwise noted, content of chicagoloopbridges.com © 2008-2026 James S. Phillips
